特徴
DASHのDNAを継承して
新たな流動を構築
Hyper Mixing
新たなるミキシング理論が、ここに完成致しました。従来のダイナミックな材料の動きに優雅さを感じるスムーズな流れを兼ね備えました。
DASHミキサの機能も継承し、さらに80mm骨材の練混ぜも可能にしたオールラウンドかつ高性能なミキサを開発致しました。
HyperMixingの練混ぜ理論
新開発の連続スパイラル羽根によって発生した強烈な「連続らせん流動」は、大きな「全体循環流動」を発生させます。
さらに「連続らせん流動」によって二軸間での「局部交錯流動」、対面側へ越流させる「卓越流動」、対面側の軸側底部空間にコンクリート材料を送り込む「押し込み流動」など、縦横無尽な流れが形成され、高品質なままコンクリートをスピーディに練上げます。

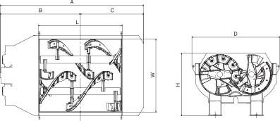
仕様
| 型式 | DSH-50 | DSH-130 | DSH-167 | DSH-225 | DSH-275 | DSH-330 | DSH-600 | |
|---|---|---|---|---|---|---|---|---|
| 練混ぜ容量[ m³ ] | 0.5 | 1.3 | 1.67 | 2.25 | 2.75 | 3.3 | 6.0 | |
| 電動機[ kW ] | 22×1台 | 22×2台 | 30×2台 | 37×2台 | 45×2台 | 55×2台 | 110×2台 | |
| 寸法[ mm ] | A | 3,157 | 3,070 | 3,480 | 3,900 | 4,000 | 4,260 | 5,560 |
| B | 1,988 | 1,730 | 1,945 | 2,220 | 2,270 | 2,430 | 3,510 | |
| C | 1,169 | 1,340 | 1,535 | 1,680 | 1,730 | 1,830 | 2,050 | |
| D | 1,600 | 2,130 | 2,130 | 2,290 | 2,475 | 2,608 | 4,050 | |
| H | 1,150 | 1,520 | 1,520 | 1,650 | 1,675 | 1,800 | 2,250 | |
| L | 1,340 | 1,660 | 2,030 | 2,300 | 2,400 | 2,600 | 3,240 | |
| W | 1,250 | 1,800 | 1,800 | 1,960 | 2,145 | 2,250 | 2,820 | |
| 質量[ kg ] | 3,300 | 6,000 | 6,500 | 8,500 | 10,000 | 11,000 | 24,000 | |
※上記仕様、寸法等は、改良のため予告なく変更する場合がありますのでご了承ください。

紹介動画
Run Around Technologyを継承した新型ミキサ
従来から高評価を得ていたDASHミキサが、DASH-Hyperミキサに進化。DASH-Hyperミキサは、新開発した連続スパイラル羽根により、定評のあった「連続らせん流動」より生じる「全体循環流動」と「局部交錯流動」を継承し、高強度・土木・建築等あらゆるコンクリートに適した「卓越流動」と「押し込み流動」を加えたニューランアラウンドテクノロジーが完成しました。また、新開発した連続スパイラル羽根やライナの改善により練混ぜ中のコンクリートの飛散低減や清掃時間の短縮・調整・交換作業の短縮化、偏摩耗対策等のメンテナンス性能の向上を図っています。
既に、小型~大型までのシリーズ化が完了しており、納入現場から高い評価を得ています。